1 кімнатна в ЖК Мануфактура (№ 213-186-326)

Ціна: 34 500 $
Характеристики
| Ціна: | 34 500 $ |
|---|---|
| № об'єкта: | 213-186-326 |
| Кімнат: | 1 |
| Поверх: | 9 / 10 ліфт |
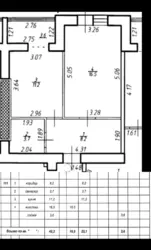
| Площа: | 41 / - / 11 м2 |
| Санвузол: | 1 сумісний |
| Балкон: | лоджія |
| Додатково: | новобудова |
Адреса: Івано-Франківська, Івано-Франківськ, Ребета вул.
Квартира виплачена повністю , на 100% , включаючи доплату по додатковій угоді з забудовником !
Площа — 43,11 м (це вже після обмірів БТІ, по техпаспорту квартири)
Поверх — 9 із 10 житлових поверхів
Будинок зданий (2 будинок ЖК), квартира введена в експлуатацію , будинок з присвоєною адресою — можна одразу отримувати ключі починати ремонт в Вашій квартирі.
Стан — після будівельників (сирець): газовий котел, заведені всі комунікації, встановлені лічильники.












